「當晨光穿透薄紗,將溫潤的木質紋理照得發亮,
生活的每個片刻,都在這裡被溫柔收藏。」
台中室內設計團隊精心呈現的《和煦·拾光》,以大地色系為基底,透過木質的自然紋理、石材的溫潤質感,以及光影的細膩變化,層層堆疊出如詩如畫的居住意境。設計師將「和煦」的溫暖與「拾光」的詩意巧妙融合,在現代簡約的架構中注入自然人文的精神內核,創造出一處既能撫慰心靈、又能品味生活的理想居所。


設計理念:將陽光收進家的角落
「和煦·拾光」這個充滿溫度的名稱,正是這個台中室內設計案的核心精神。設計團隊以溫潤的大地色調作為空間的主軸,透過米白、淺木、灰褐的色階變化,營造出如同晨光灑落般的溫暖氛圍。而「拾光」則象徵著將生活中的每一道光、每一個美好時刻都細心收藏,讓居住者在日常中感受到歲月靜好的詩意。
這種設計手法在台中室內設計中展現了成熟的美學涵養,它需要設計師對色彩、材質、光線有極為精準的掌握。透過自然材質的溫潤質感,反而讓空間產生了一種放鬆而療癒的氛圍,非常適合現代人追求的舒適生活品質。

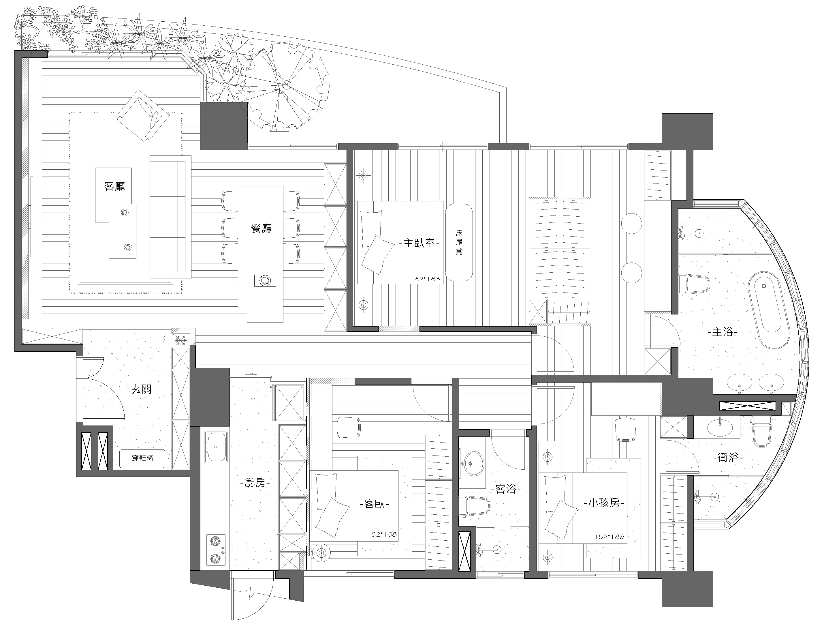
客廳空間:自然光影中的生活劇場


開闊格局的流動美學
步入客廳,首先感受到的是空間的開闊與流暢。設計師採用開放式格局,讓客廳、餐廳與廚房形成一個無隔閡的生活場域。大面積的落地窗引入充足的自然光線,配合淡雅的薄紗窗簾,營造出如同呼吸般自然的光影變化。
天花板採用多層次的造型設計,搭配內嵌式的燈帶,形成柔和的間接照明。這種設計手法不僅讓空間在視覺上更有層次感,也創造出溫馨而不刺眼的照明氛圍,是台中室內設計中常見的精緻手法。


沙發區:大地色調的溫柔擁抱
客廳的主角無疑是那組米灰色調的L型沙發。設計師選用了高品質的布質沙發,飽滿的座墊與蓬鬆的靠墊,展現出如同雲朵般的舒適質感。沙發表面細緻的布料在光線照射下呈現出溫潤的色澤,搭配深淺不一的抱枕——從棕褐色到深灰色,為空間增添了豐富的層次感。
圓形的大理石茶几如同一輪滿月,白色的石材表面帶有自然的紋理,搭配木質的十字底座,展現出東方美學中「天圓地方」的意象。這種精緻的細節處理,正是台中室內設計備受推崇的原因之一。


電視牆:隱藏機能的藝術表現
電視牆面採用大面積的淺色石材,搭配內嵌式的LED燈帶,在視覺上呈現出懸浮的輕盈感。設計師將收納機能完美隱藏在簡約的立面中,讓牆面保持乾淨俐落的線條。側邊的展示格櫃以木質材料點綴,陳列著精心挑選的器物與綠植,為空間注入生活的溫度。

餐廚空間:生活美學的日常實踐
開放式廚房:料理時光的優雅舞台
從客廳望向廚房,視線毫無阻礙地延伸。開放式廚房以淺木色系櫥櫃為主調,搭配白色的檯面與中島,展現出清爽而溫暖的視覺效果。中島不僅是料理的工作檯,更是家人互動的中心點,也巧妙地界定了客廳與廚房的空間分野。
懸浮式的上櫃設計減輕了視覺壓力,內嵌的燈帶照亮了工作檯面,同時也成為空間中的裝飾光源。這種講究機能與美感並重的設計,正是台中室內設計的專業展現。


餐廳區域:木質調的溫暖聚會
餐廳空間以天然木質餐桌為核心,溫潤的木紋與整體空間的色調完美呼應。搭配的餐椅採用木質框架與布質坐墊的組合,兼顧了舒適性與美感。餐桌上方吊燈的選擇也別具巧思,簡約的線條造型與整體風格相得益彰。
窗邊擺放著綠色植栽,為空間帶來生命力,也讓用餐時光更加愜意。這個角落在午後時分特別迷人,陽光透過薄紗灑落,彷彿能聽見時光流淌的聲音。
在台中室內設計中,材質的選擇與搭配往往決定了空間的品味高度。「和煦·拾光」運用了多種天然質感材料:
- 淺木質材:大量運用在地板、櫥櫃與家具中,帶來溫暖而自然的基調
- 大理石元素:運用在茶几、檯面與牆面,增添精緻質感
- 布質軟裝:沙發與抱枕的布料選擇,為空間帶來柔軟舒適的觸感
- 石材肌理:天然石材的紋理變化,成為空間中的藝術表情
主臥空間:晨光中的暖色優雅

線板語彙的優雅詮釋
推開主臥室的門,迎面而來的是一份靜謐而優雅的氛圍。床頭主牆採用精緻的線板設計,以垂直分割的線條搭配拱形造型,創造出如同古典建築般的典雅韻味。設計師選用溫潤的米灰色調作為基底,讓空間散發出柔和而寧靜的氣質。這種新古典式的線板手法在台中室內設計中別具特色,既保留了經典元素的精緻感,又不失現代簡約的清爽。
床頭兩側對稱配置的壁燈,採用金銅色圓環搭配白色球型燈罩,在牆面投射出溫暖的光暈。這不僅是實用的閱讀光源,更成為空間中的精緻裝飾,為主臥注入一份細膩的生活品味。

陽台景觀的延伸視野
主臥最令人驚喜的設計,莫過於與戶外陽台的完美連結。大面積的落地窗將室內外空間自然串聯,讓陽台的綠意景觀成為臥室的一部分。推開門,木質地板延伸至戶外,陽台上種植的雞蛋花樹在微風中搖曳,為都市生活增添了一份悠然自得的度假感。
這種「借景」的設計手法,是台中室內設計常用的空間延伸技巧。透過視覺的連貫性,即使在室內也能感受到戶外的自然氣息,讓居住者每天醒來都能看見綠意盎然的景致。


更衣間:隱藏機能的美學實踐
主臥配備了完整的更衣梳妝空間,設計師以淺色木質櫃體打造出一個獨立的更衣區域。梳妝檯採用一體成型的設計,上方配置對稱的鏡櫃與展示層架,搭配內嵌式的燈帶照明,營造出如同精品店般的精緻氛圍。
木質椅凳的線條簡潔優雅,與整體空間的色調完美融合。這個角落不僅滿足了收納與梳妝的實際需求,更是一個讓女主人獨處、梳理心情的私密空間。透過玻璃展示櫃,可以陳列珍藏的香水或飾品,讓日常儀式也能充滿儀式感。


主臥衛浴:度假飯店般的奢華享受
主臥衛浴以大地色系的磁磚搭配白色衛浴設備,營造出清爽而放鬆的氛圍。獨立式的白色浴缸圓潤流暢的線條如同雕塑藝術品般,擺放在窗邊的位置,讓入浴時光也能欣賞窗外景致。
雙洗手檯的配置展現了對使用便利性的周到考量,灰色調的懸浮式浴櫃搭配木質把手,與主臥空間的設計語彙一脈相承。大面積的鏡面配合內嵌燈帶,讓整個空間明亮而不刺眼。這種飯店式的衛浴設計,正是台中室內設計追求的高品質生活典範。
淋浴區以透明玻璃隔間,搭配細緻的灰色磁磚,營造出現代而俐落的視覺效果。充足的窗戶採光讓衛浴空間也能保持明亮通風,即使是私密的盥洗空間,也能享受自然光線的溫柔撫慰。
兒童室:成長時光的溫柔陪伴


彈性空間的智慧規劃
這個多功能房間展現了台中室內設計對於空間使用彈性的深刻理解。設計師以溫潤的木質調為基底,搭配淺米色系的櫃體,創造出一個既能作為兒童遊戲室,也能隨著孩子成長轉換為書房或客房的彈性空間。
書桌區採用懸浮式設計,搭配開放式層架與展示格,讓孩子的學習用品、收藏品都能有序陳列。球型桌燈散發出柔和的光暈,為閱讀與學習時光提供舒適的照明。開放層架不僅滿足收納需求,更能隨著孩子成長,展示不同階段的興趣收藏,見證每個珍貴的成長瞬間。
次臥空間:沉穩內斂的都會風尚


深色美學的大膽演繹
這間次臥展現了與主臥截然不同的設計語彙。設計師大膽採用深灰色特殊漆作為床頭主牆,創造出如同夜幕降臨般的沉穩氛圍。這種深色調的運用在台中室內設計中需要極高的技巧,設計師透過精準的光線配置與材質搭配,讓空間在深沉中依然保持溫暖與舒適。
深色牆面與淺色床頭板形成了強烈的視覺對比,褐色布質床頭的柔軟質感,中和了深色牆面可能帶來的壓迫感。床頭兩側配置的現代感立燈,採用金屬圓柱搭配乳白色球型燈罩的組合,在夜晚散發出如同月光般柔和的光暈,為空間注入一份現代都會的精緻品味。


生活美學的溫暖詮釋
「和煦·拾光」這個案例,展現了台中室內設計在美學與機能整合上的成熟度。設計團隊不僅創造了一個視覺上令人感到舒適的空間,更重要的是打造了一個真正適合現代人居住的生活場域。
透過自然材質的溫潤質感、大地色調的細膩搭配、以及對光影變化的精準掌握,這個空間成功詮釋了「少即是多」的設計哲學。它證明了台中室內設計不只是追求表面的華麗,而是深入思考居住者的生活需求與精神追求。
在這個被陽光溫柔擁抱的空間裡,每一天都是美好的開始,每一刻都值得被細心收藏。如果您也嚮往這樣兼具自然美學與現代機能的居住空間,不妨參考「和煦·拾光」的設計手法。在台中室內設計的專業團隊協助下,相信您也能擁有一個如同晨光般溫暖、又充滿生活詩意的理想家居。
讓陽光住進家裡,讓時光在此停留。 這不只是一個空間,更是一種生活態度的體現。
│易構設計 𝗘𝗚𝗢 𝗗𝗘𝗦𝗜𝗚𝗡 𝗦𝗧𝗨𝗗𝗜𝗢│
ADRESS / 台中市西屯區上明一街45號
PHONE / 04-2452-4779